Casa Charlotte
ANTEPROYECTO VIVIENDA UNIFAMILIAR CON PISCINA
Esta vivienda contemporánea con vistas al mar es un ejemplo de arquitectura moderna que fusiona diseño, practicidad y una conexión armoniosa con el entorno natural.
Situada en un acantilado, con una orientación que maximiza las vistas panorámicas del mar. Rodeada de vegetación autóctona y paisaje natural.
Fachada de líneas limpias y formas geométricas que definen una estética minimalista. Configurada con grandes ventanales de suelo a techo que permiten la entrada abundante de luz natural y ofrecen vistas ininterrumpidas al mar con amplios espacios exteriores
Interior con un diseño de planta abierta que integra las áreas de estar, comedor y cocina, creando un flujo continuo y un espacio aireado.
Se ha utilizado una paleta de colores neutros y suaves (blancos, grises, beige) que complementan el entorno y potencian la luz natural.
Piscina infinita que parece fusionarse con el horizonte marino, rodeada de una terraza con áreas para tomar el sol y relajarse.
Esta vivienda contemporánea con vistas al mar no solo ofrece un diseño sofisticado y comodidades modernas, sino también una profunda conexión con el entorno natural, proporcionando un refugio tranquilo y lujoso.
PRELIMINARY PROJECT FOR A SINGLE-FAMILY HOUSE WITH SWIMMING POOL
This contemporary home with sea views is an example of modern architecture that fuses design, practicality and a harmonious connection with the natural environment.
Located on a cliff, with an orientation that maximizes the panoramic views of the sea. Surrounded by native vegetation and natural landscape.
Façade of clean lines and geometric shapes that define a minimalist aesthetic. Configured with large floor-to-ceiling windows that allow abundant natural light to enter and offer uninterrupted sea views with ample outdoor spaces.
Interior with an open plan design that integrates the living, dining and kitchen areas, creating a seamless flow and airy space.
A soft, neutral color palette (whites, grays, beige) has been used to complement the surroundings and enhance natural light.
Infinity pool that seems to merge with the sea horizon, surrounded by a terrace with areas for sunbathing and relaxing.
This contemporary home overlooking the sea not only offers sophisticated design and modern amenities, but also a deep connection to the natural environment, providing a tranquil and luxurious retreat.
Arquitectura - Architecture / S-tudio Base
Interiorismo - Interior Design / S-tudio Base
Infografias - Infographics 3D / JCBAB
Categoría - Category / Residencial
Finalización - Completion / 2024
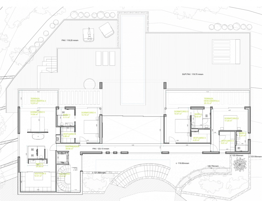
PLANIMETRÍA - PLANIMETRY
Planta semisotano - Semi-basement floor

Planta baja - First floor

Planta primera - Second floor
