Casa Cuablanc
AMPLIACIÓN Y REFORMA INTEGRAL DE VIVIENDA UNIFAMILIAR CON PISCINA
Geometría pura y atmósfera mediterránea
El proyecto transforma una vivienda tradicional mediterranea obsoleta sin piscina a una vivienda mediterranea con influencias minimalistas de formas limpias, muros blancos, geometrias simples, integración con la naturaleza de la parcela y aprovechando los ambientes exteriores.
La vivienda es proyectada como un refugio de tranquilidad y elegancia, se desarrolla en niveles a partir de una composición volumétrica clara, de líneas rectas y proporciones armoniosas. En la planta baja, una secuencia de arcos genera una transición fluida entre el interior y el exterior, articulando una terraza sombreada. La planta superior, que alberga la zona de noche, incorpora terrazas privadas protegidas por parapetos limpios y cristalería de baja invasividad visual, que permite vistas ininterrumpidas al jardín y a la piscina. La circulación vertical se enfatiza mediante una escalera exterior que, sin protagonismo innecesario, complementa el carácter funcional y escultórico del conjunto.
La piscina de microcemento con poca profundidad se integra con naturalidad en el pavimento de piedra, que se extiende por toda la plataforma exterior. A un costado, una pérgola de madera natural enmarca el área social al aire libre: cocina, comedor y zona de relax, definidas por una selección de materiales cálidos y duraderos que evocan el estilo de vida mediterráneo.
EXTENSION AND COMPLETE RENOVATION OF A DETACHED HOUSE WITH SWIMMING POOL
Pure geometry and Mediterranean atmosphere
The project transforms an obsolete traditional Mediterranean house without a swimming pool into a Mediterranean house with minimalist influences, clean lines, white walls, simple geometries, integration with the nature of the plot and taking advantage of the outdoor spaces.
The house is designed as a haven of tranquillity and elegance, developed on different levels based on a clear volumetric composition, with straight lines and harmonious proportions. On the ground floor, a sequence of arches creates a fluid transition between the interior and exterior, forming a shaded terrace. The upper floor, which houses the sleeping area, incorporates private terraces protected by clean parapets and low-visibility glass, allowing uninterrupted views of the garden and pool. Vertical circulation is emphasised by an exterior staircase that, without unnecessary prominence, complements the functional and sculptural character of the whole.
The shallow microcement pool blends naturally into the stone paving, which extends across the entire outdoor platform. To one side, a natural wood pergola frames the outdoor social area: kitchen, dining room and relaxation area, defined by a selection of warm, durable materials that evoke the Mediterranean lifestyle.
Arquitectura - Arquitecture / S-tudio Base
Interiorismo - Interior design / A.Concept Store and S-tudio Base
Mobiliario - Furniture / A.Concept Store
Promotor - Developer / A.Concept Store
Ubicación - Location / Benissa
Categoría - Category / Residencial - Living
Finalización - Completion / 2025
Fotografia - photography / Adrián Mora Morato
Prensa - Press
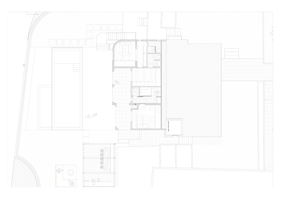
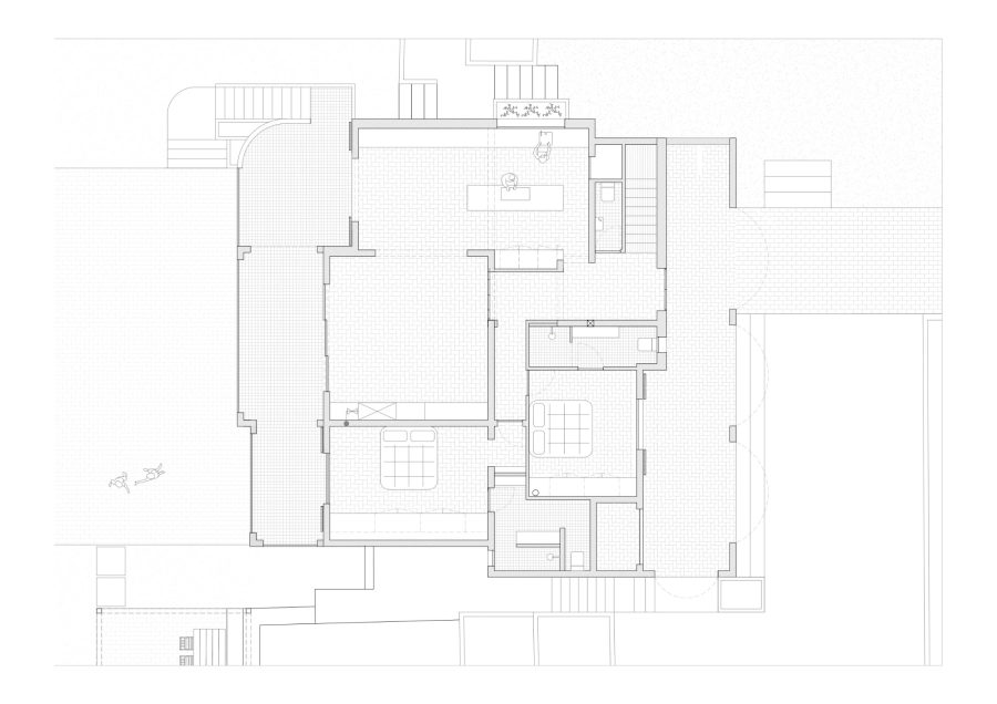
PLANIMETRÍA - PLANIMETRY
Estado inicial - Initial state

Estado reformado - Reformed state




