Casa Llenes
Reforma integral de vivienda unifamiliar
Vivienda ubicada en la Marina Alta, rodeada de un entorno natural privilegiado.
Se propone convertir en hogar una vivienda de los años 2000, actualizando todos los espacios y acabados.
La eleccion de materiales naturales pretende mantener la esencia tradicional mediterranea a la vez que aporta un aire fresco a la vivienda. Pavimento manual de barro con forma hexagonal, alicatados tradicionales combinados con microcemento en baños, restauración de carpinteria exterior de madera, mucha presencia de madera en cocina y mobiliario. Estos materiales están dentro de la tradición constructiva del mediterraneo.
Arquitectura / S-tudio Base
Interiorismo / S-tudio Base
Ubicación / Benissa (Alicante)
Categoría / Residencial
Finalización / 2023
Carpinteria madera / Fustadecora
Fotografia / Adrián Mora Maroto
Prensa - Press
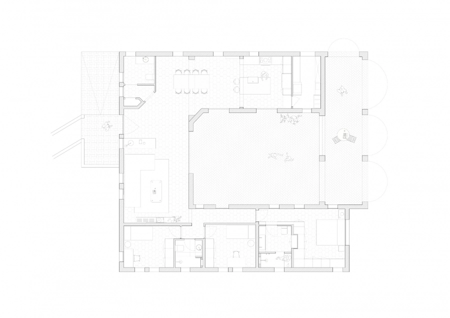
PLANIMETRÍA
Estado actual

Estado reformado
