Casa Porteria
PROYECTO REFORMA INTEGRAL DE VIVIENDA PORTERIA
Proyecto para rehabitar una portería en desuso.
INTEGRAL REFORM PROJECT OF A PORTER'S LODGE
Project to re-inhabit an unused porter's lodge.
Arquitectura - Architecture / S-tudio Base
Interiorismo - Interior Design / S-tudio Base
Ubicación - Location / Valencia
Categoría - Category / Residencial
Promotor - Promoter / Privado
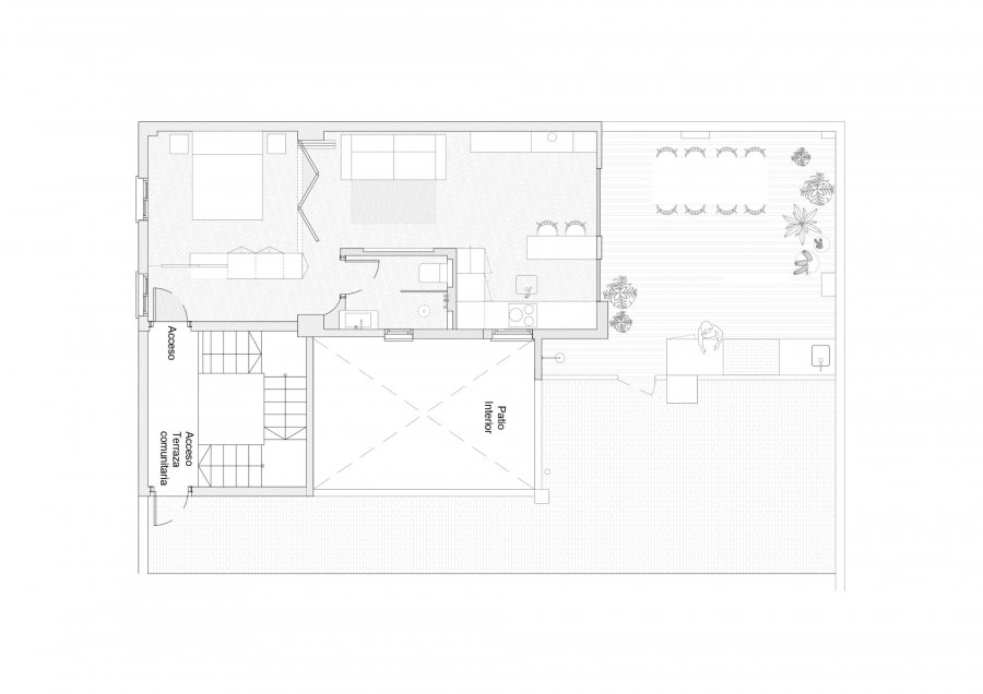
PLANIMETRÍA - PLANIMETRY
Estado propuesto - proposed status
