Complejo Turistico
COMPLEJO APARTAMENTOS TURÍSTICOS
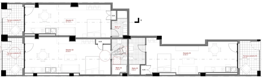
El proyecto desarrolla un conjunto de apartamentos turísticos en planta baja, concebidos bajo una estrategia de máxima funcionalidad espacial y optimización de superficies reducidas. La organización se plantea en esquema abierto, donde la cocina, el estar-comedor y el dormitorio se articulan en un único ambiente, delimitado mediante elementos ligeros y transiciones visuales en lugar de cerramientos opacos.
La paleta material se basa en la neutralidad cromática como recurso de amplitud. Este carácter se contrasta con elementos puntuales en negro —griferías, luminarias y mobiliario auxiliar— que aportan un lenguaje contemporáneo. Se incorporan texturas cálidas a través de fibras naturales y maderas en tonos medios, equilibrando la sobriedad cromática con la calidez doméstica. La relación con el exterior se potencia mediante grandes paños acristalados con cortinas de velo translúcido, que permiten la entrada de luz natural sin perder privacidad.
En conjunto, el proyecto persigue un equilibrio entre funcionalidad hotelera y confort residencial, resolviendo con eficiencia espacios compactos y otorgando identidad mediante un lenguaje arquitectónico sobrio, atemporal y adaptable. Un lugar donde cada usuario se pueda sentir habitante y no visitante.
TOURIST APARTMENT COMPLEX
The project develops a set of tourist apartments on the ground floor, designed with a strategy of maximum spatial functionality and optimisation of small spaces. The layout is open plan, where the kitchen, living-dining room and bedroom are arranged in a single space, delimited by light elements and visual transitions instead of opaque enclosures.
The material palette is based on chromatic neutrality as a means of creating a sense of spaciousness. This is contrasted with specific black elements—taps, light fixtures and auxiliary furniture—which lend a contemporary feel. Warm textures are incorporated through natural fibres and medium-toned woods, balancing the chromatic sobriety with domestic warmth. The relationship with the exterior is enhanced by large glass panels with translucent voile curtains, which allow natural light to enter without compromising privacy.
Overall, the project seeks to strike a balance between hotel functionality and residential comfort, efficiently resolving compact spaces and providing identity through a sober, timeless and adaptable architectural language. A place where every user can feel like a resident rather than a visitor
Interiorismo - Interior design / S-tudio Base
Ubicación - Location / Valencia
Categoría - Category / Hotelero
Finalización - Completion / 2025
Fotografia - photography / Adrián Mora Morato
PLANIMETRÍA - PLANIMETRY
