Casa Miradores
PROYECTO EN PROCESO
Vivienda unifamiliar ubicada en un entorno rural de Castilla La Mancha
Directrices rurales con estrategia contemporanea.
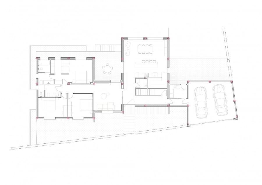
Se proyecta un juego de volumenes con diferentes opciones de cubierta, tres volumentes con cubierta inclinada a dos aguas y dos volumentes uniendo estos tres con cubierta plana.
Los espacios estan muy diferenciados dentro de estos volumenes. Resaltando un volumen principal donde fluje la vida de la vivienda.
Diseñando las vistas. Estos volumenes principales estan estrategicamente enfocados a la naturaleza del entorno.
El resultado es proyectar una vivienda con la calidad y confort propia de una casa de pueblo.
Arquitectura / S-tudio Base
Interiorismo / S-tudio Base
Ubicación / El Peral (Cuenca)
Categoría / Residencial
Finalización / Actualmente en fase proyecto
PLANIMETRÍA
