Casa Mar Aral
PROYECTO REFORMA INTEGRAL DE VIVIENDA UNIFAMILIAR
Arquitectura mediterranea
INTEGRAL REFORM PROJECT OF A SINGLE-FAMILY HOUSE
Mediterranean architecture
Arquitectura - Architecture / S-tudio Base
Interiorismo - Interior Design / S-tudio Base
Ubicación - Location / Moraira
Categoría - Category / Residencial
Promotor - Promoter / Privado
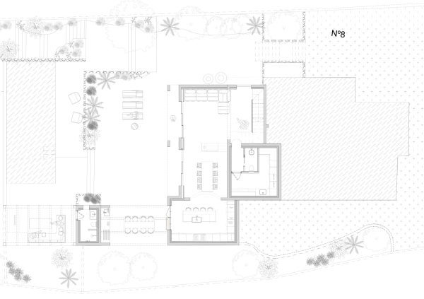
Planimetria - Floor plan
Planta baja - Ground floor

Planta semisotano - Basement level
