La Barra Gastrobar
PROYECTO RESTAURANTE
La Barra Gastrobar
Arquitectura - Architecture / S-tudio Base
Interiorismo - Interior Design / S-tudio Base
Ubicación - Location / Javea
Categoría - Category / Contract
Promotor - Promoter / Privado
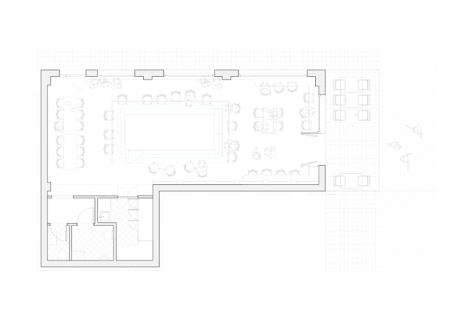
Planimetria - Floor Plan
