Casa Progreso
PROYECTO REHABILITACIÓN DE VIVIENDA
Rehabilitación de una antigua vivienda entre medianeras ubicada en el barrio de pescadores de Valencia, El Cabanyal.
Es una vivienda unica, conserva sus muros de ladrillo, sus vigas y viguetas de madera, ejecutadas de una manera artesanal. Gracias a estos elementos, la vivienda da un valor añadido al proyecto.
El trabajo que ha realizado el estudio es un ejercicio de reciclaje y reutilización en el entorno, materiales y espacios para dibujar algo completamente nuevo, adaptando la vivienda a una nueva forma de vida. En el proyecto aparecen elementos que rompen con lo tradicional, como la escalera metálica, diseño de cocina y mueble del baño.
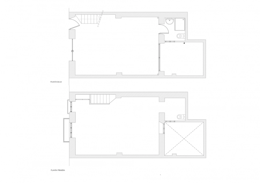
La vivienda esta formada por planta baja y primera. El espacio interior de planta baja esta formado por un volumen diáfano en el que convergen zona de estar, comedor, cocina y una pequeña zona oficina. Consta un pequeño patio que sirve de desahogo a la vivienda. En planta primera proyectamos la "zona de noche", compuesta por dos habitaciones y un baño. Estas habitaciones pueden ser espacios multifuncionales dependiendo el perfil de personas que habiten, en cuanto pueden responder a unas necesidades u otras.
El resultado final nace de una compresión del valor material de la vivienda mezclado con la necesidades de habitar los espacios en la actualidad.
HOUSING REFURBISHMENT PROJECT
Rehabilitation of an old house between party walls located in the fishermen's neighbourhood of Valencia, El Cabanyal.
It is a unique house, preserving its brick walls, its wooden beams and joists, executed in a traditional way. Thanks to these elements, the house gives added value to the project.
The work carried out by the studio is an exercise in recycling and reusing the environment, materials and spaces to create something completely new, adapting the house to a new way of life. In the project there are elements that break with the traditional, such as the metal staircase, kitchen design and bathroom furniture.
The house consists of a ground floor and a first floor. The interior space on the ground floor consists of an open-plan volume in which the living area, dining room, kitchen and a small office area converge. There is a small courtyard that serves as a relief to the house. On the first floor we designed the "night area", consisting of two bedrooms and a bathroom. These rooms can be multifunctional spaces depending on the profile of the people who live there, as they can respond to different needs.
The final result is born from a compression of the material value of the house mixed with the needs of living spaces nowadays.
Arquitectura / S-tudio Base
Interiorismo / S-tudio Base
Ubicación / Valencia, barrio del Cabanyal
Categoría / Residencial - Rehabilitacion
Finalización / 2024
Construye / InEx Construcción
Fotografia / Adrián Mora Maroto
Mobiliario madera / Cubro
Prensa - Press
PLANIMETRÍA
Estado actual

Estado reformado
