Casa Torre en conill
Vivienda unifamiliar aislada con piscina ubicada en un entorno residencial.
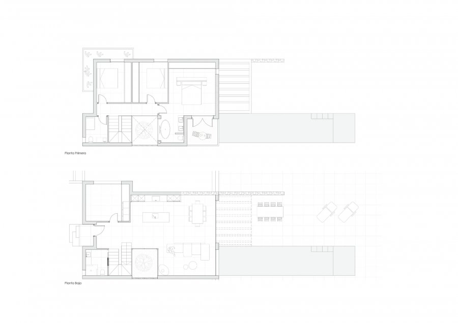
Compuesta por dos plantas. Planta baja en la que se distribuyen los espacios de la zona de día, y planta primera donde se alberga la zona de noche, dormitorios. Amplias zonas exteriores compuestas por garaje, jardineria, piscina y terrazas exteriores.
Se proyecta una vivienda de estilo mediterraneo, basada en construcciones cúbicas y de tejados planos caracterizada por su sencillez y funcionalidad. Buscando una buena orientación para generar espacios agradables de temperatura y luminosidad.
Arquitectura / S-tudio Base
Interiorismo / S-tudio Base
Colaboración proyecto arquitectonico y visualización 3D / Selfa Arq
Ubicación / Torre en Conill (Betera)
Categoría / Residencial
Finalización / 2022
Fotografia / Adrián Mora Maroto
PLANIMETRÍA

